Полезные статьи
Читать все статьиШумозащитный кожух для генератора 320-550 кВт (У)
28 925
Вуn
Характеристики товара
Артикул:
013260
Гарантия, срок (мес):
12
Масса, кг:
1150
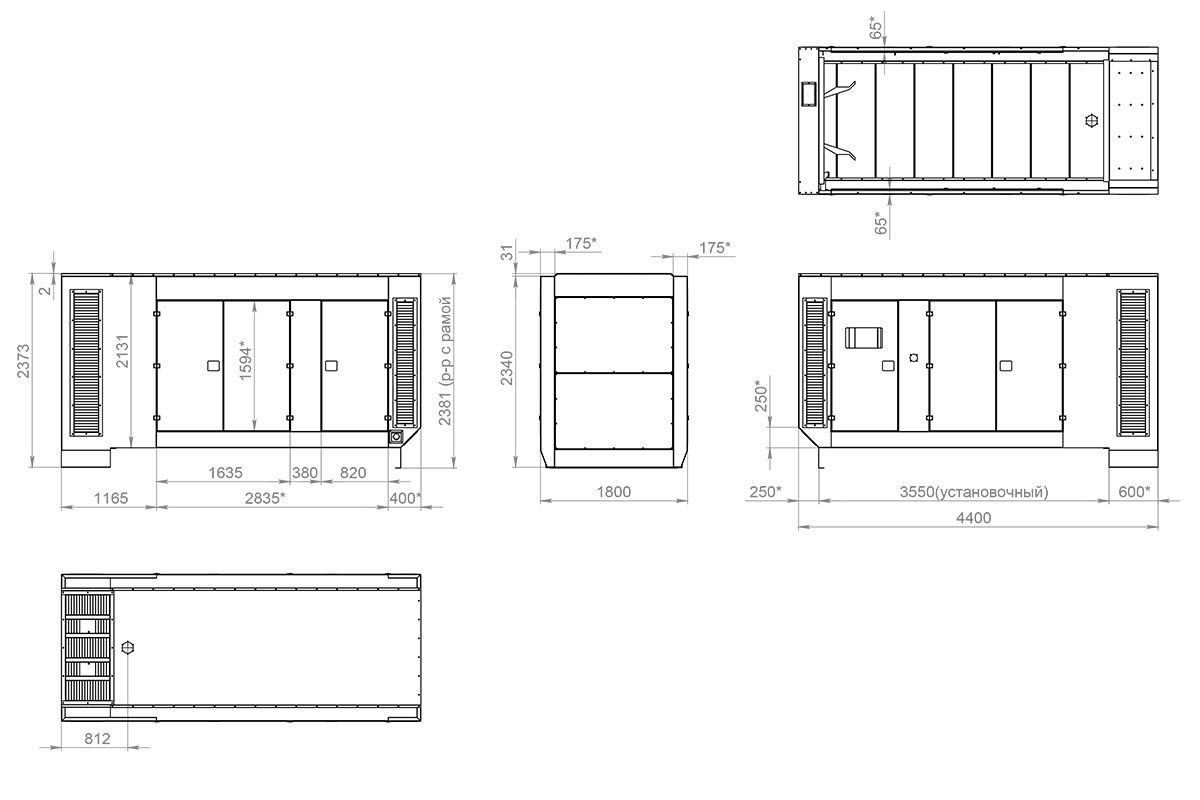
Габаритные размеры (Д;Ш;В; мм):
4400х1800х2390
Длина (мм):
4400
Ширина (мм):
1800
Высота (мм):
2390
Вес брутто (кг):
1151
Картинки2:
https://tss.ru/upload/iblock/ee7/8xh6bfuo8a68c9s7gi5orrec78zbiks2.jpg
Детальное описание товара2:
Шумозащитный кожух предназначен для защиты ДГУ от осадков, обеспечения безопасности работы и уменьшения уровня шума, исходящего от работающей ДГУ. Кожух изготавливается по раме дизель-генераторной установки из стального листа толщиной 1,5-2 мм с пор
Шумозащитный кожух предназначен для защиты ДГУ от осадков, обеспечения безопасности работы и уменьшения уровня шума, исходящего от работающей ДГУ. Кожух изготавливается по раме дизель-генераторной установки из стального листа толщиной 1,5-2 мм с порошковым покрытием и дополнительным шумозащитным покрытием. Для проведения технического обслуживания кожух имеет дверцы с удобным замком. Напротив щита собственных нужд в створке двери кожуха имеется окно для визуального контроля за работой оборудования. Генераторную установку в шумопоглащающем кожухе можно эксплуатировать как в помещении, так и на улице при температуре окружающей среды от -25°С до +40°С.
Похожие товары
Вы недавно смотрели:


